Mediocasa Immobiliare

Lentate sul Seveso centro ampio ufficio

LOCALIZZAZIONE IMMOBILE

DESCRIZIONE

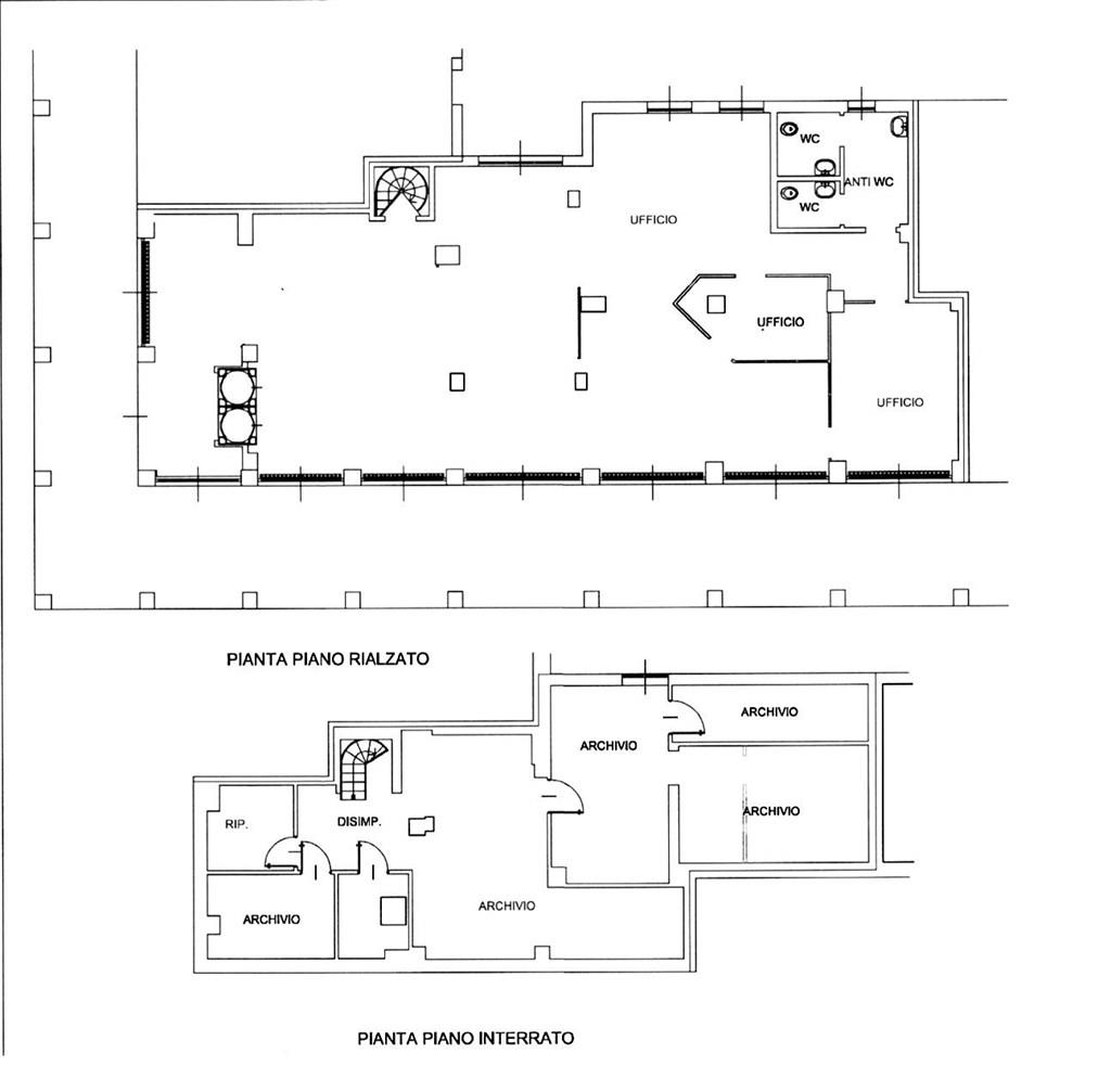
Lentate sul Seveso centro, UFFICIO/STUDIO professionale al piano terra di mq. 230 con doppi servizi e annesso ampio cantinato di mq. 135 collegato con scala interna. L'immobile in buone condizioni, è molto luminoso grazie ad una vetrata continua con doppia esposizione, dotato di controsoffittatura in lamelle di metallo e lampade di illuminazione. Posizione centrale per il paese, inserito tra altre realtà commerciali, vicinanze Banca e luoghi di culto. Termoautonomo con ventilconvettori e condizionato. Certificazione energetica classe E (323,70 Kwh/mq/anno). Richiesta € 396.000. Disponibile subito.

CARATTERISTICHE

Riferimento:
818
Comune:
Lentate sul Seveso
Zona:
centro
Tipologia:
Ufficio
N. Locali:
1
Prezzo €:
396.000,00
Box:
Mq. immobile:
364,5
Cucina:
N. camere / N. bagni:
/
Spese cond. annue €:
Arredamento:
Non Arredato
Piano:
Terra di 4
Riscaldamento:
Autonomo
Stato:
Libero
Anno costruzione:
1972
Caratteristiche: Ascensore, Cantina 135 mq, Condizionatore, Predisposizione allarme, Allarme
Efficienza Energetica: Classe E Ipe 323,7 KWh/m²a
Prestazione energetica del fabbricato inverno estate

CONTATTI

Nome *
Cognome *
Email *
Telefono

Messaggio


Ai sensi e per gli effetti degli articoli 13 e 6 del Regolamento UE 2016/679, dichiaro di aver preso visione dell’informativa di Mediocasa Sas per il trattamento dei dati personali